合景裝飾20年大品牌,精耕辦公裝修市場,提供規劃設計、采購、施工等一站式服務,得到客戶“高回頭率 高滿意度”的肯定,曾獲得CCTV2頒發的“優秀設計團隊”獎
2020-11-23
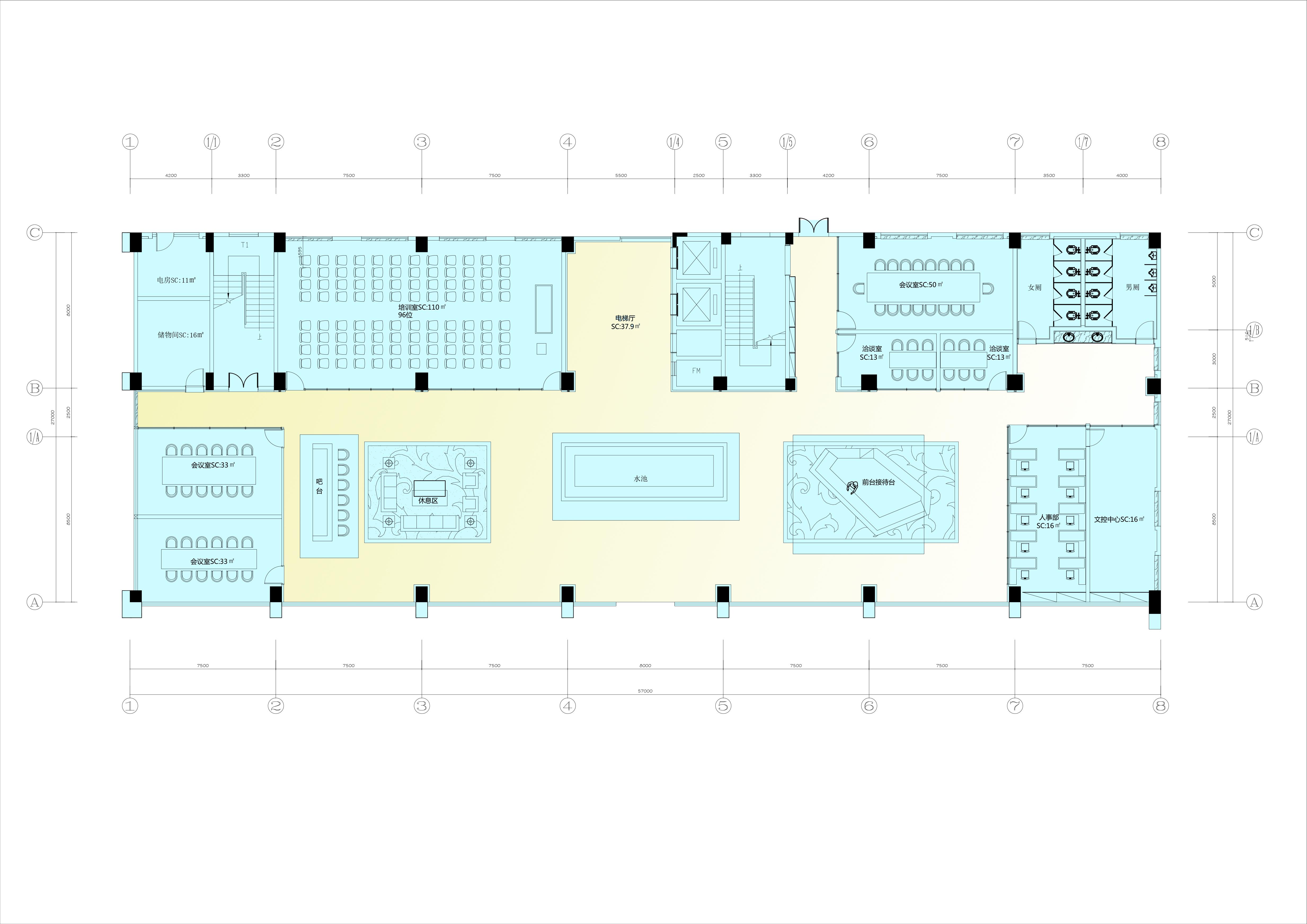
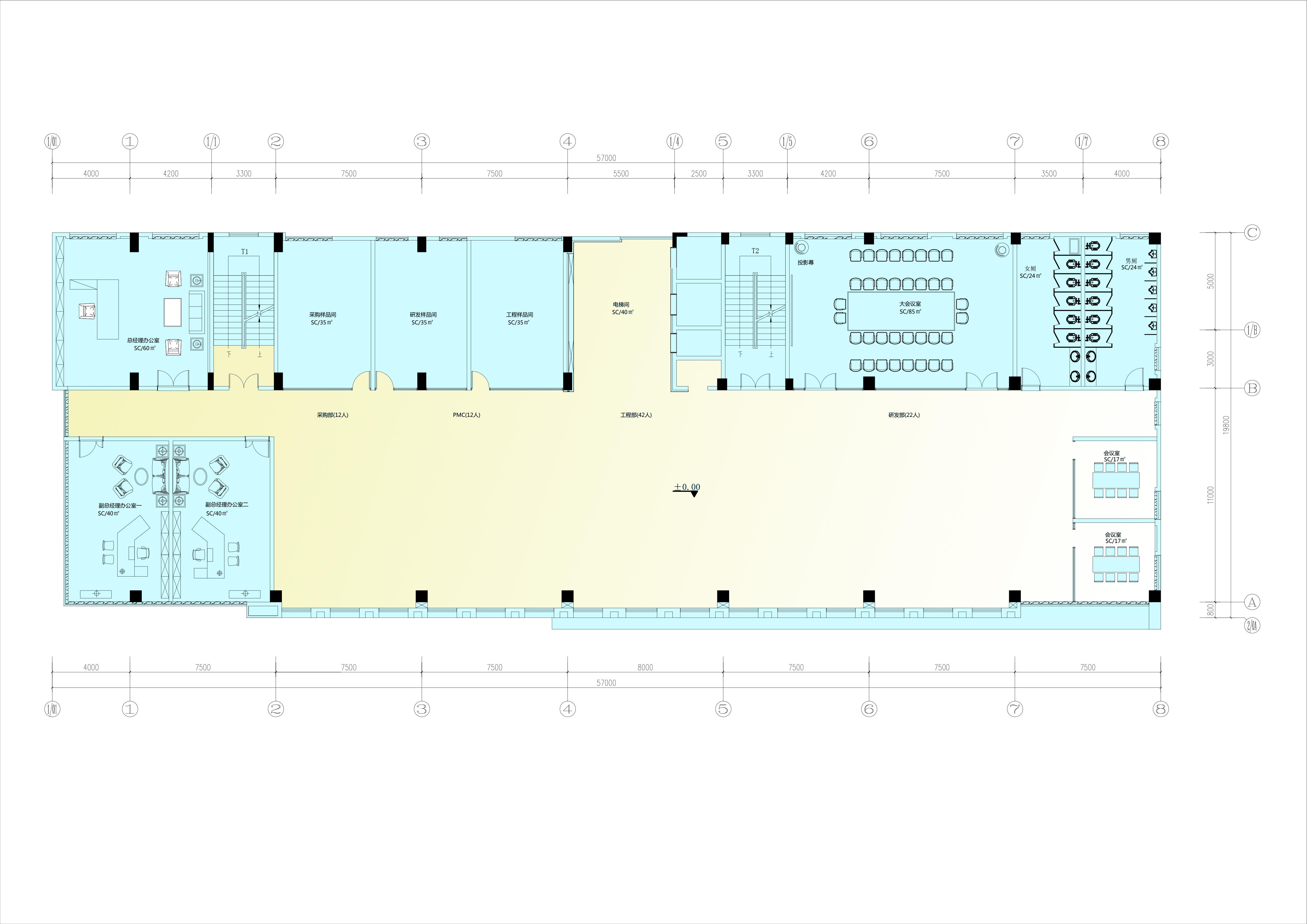
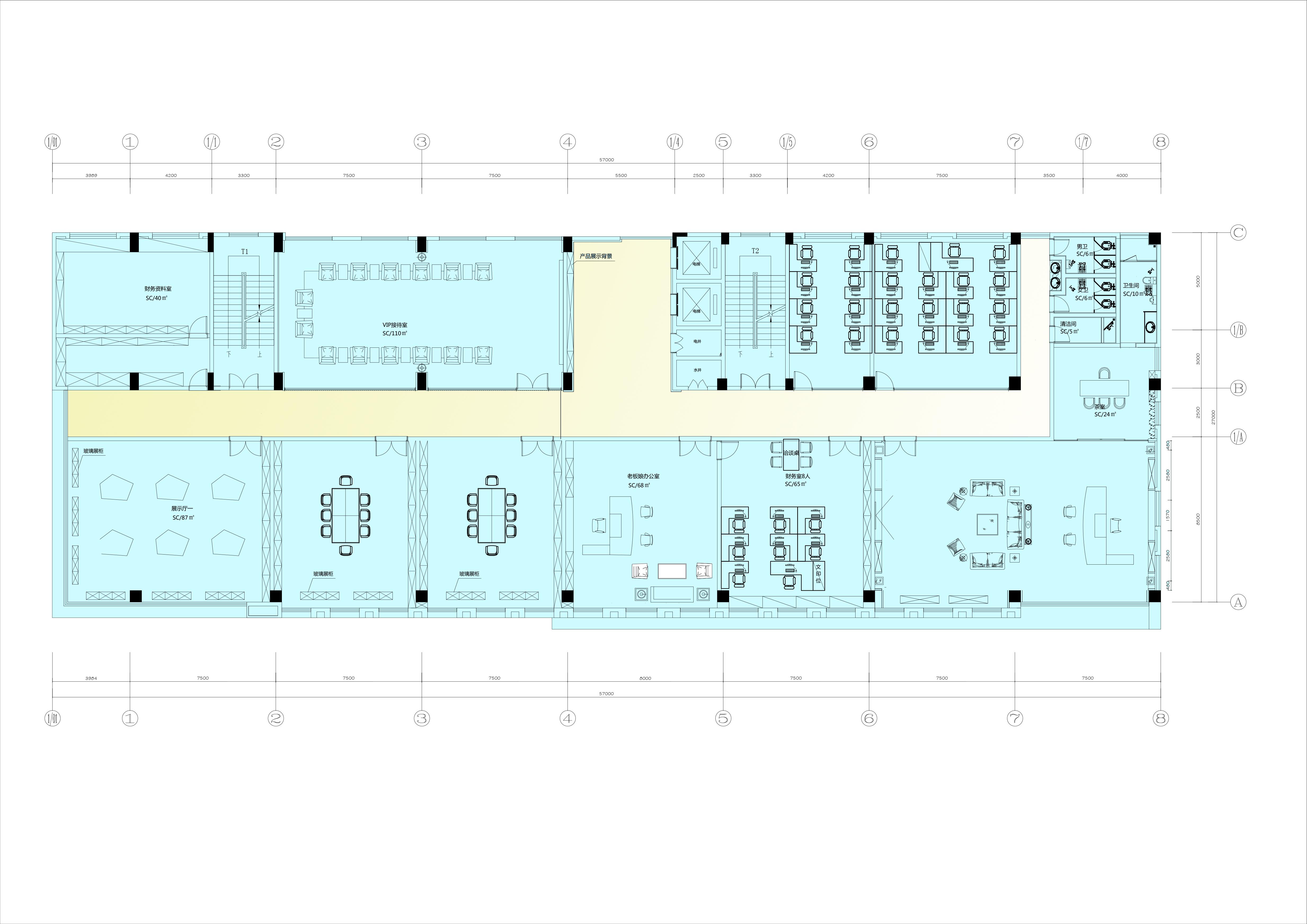
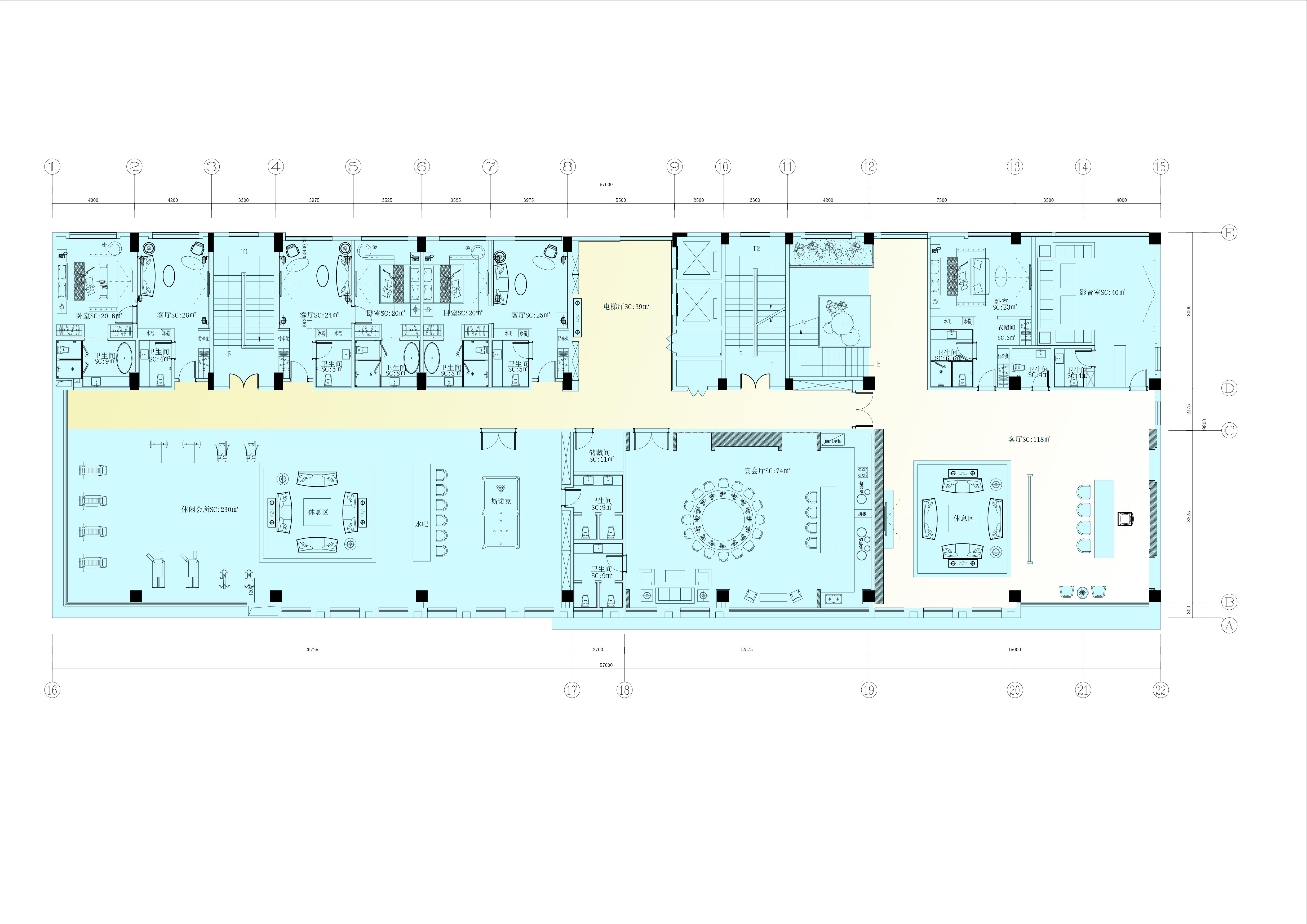
合景裝飾合作單位東莞卓比塑膠制品公司是一家專業從事設計、研發、制造高級化妝品、醫療、食品及日用品等各種塑膠容器的大型廠商。企業以PET、PETG、PCTA、PE、PP、ABS、PS、、SURLYN等原料為主,生產塑膠容器、泵頭、化妝盒及其它各類塑膠制品。








OTHER