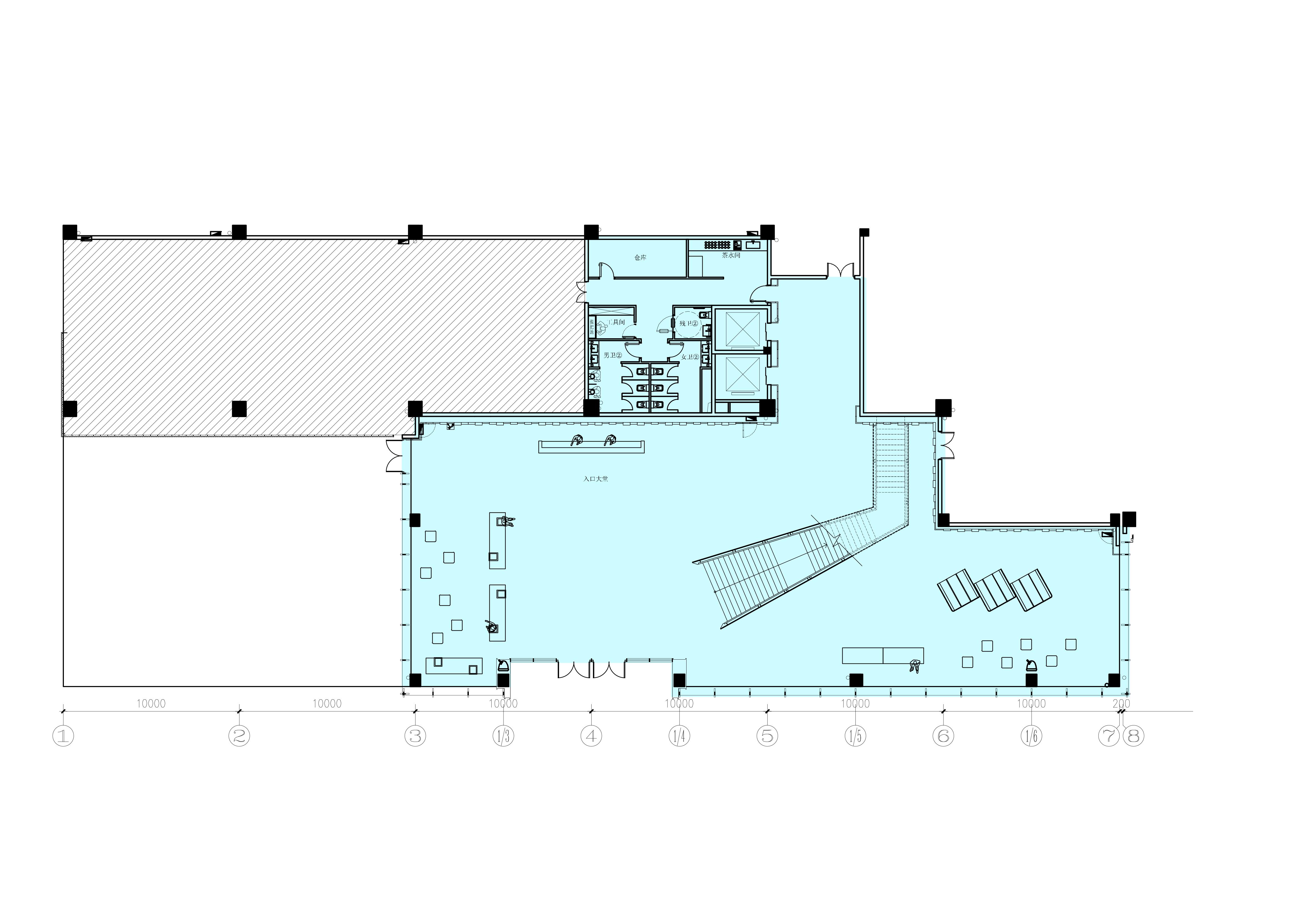
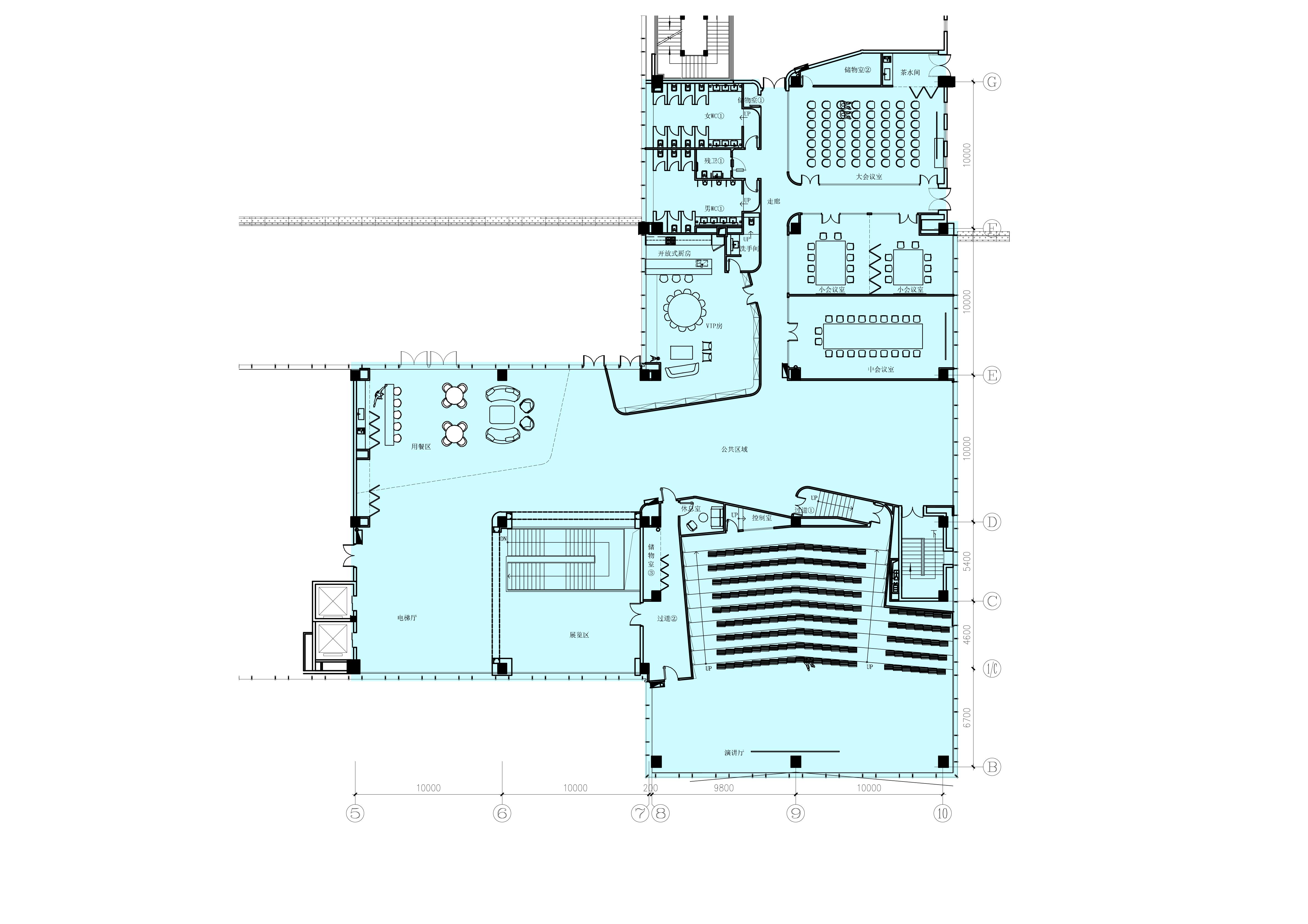
合景裝飾20年大品牌,精耕辦公裝修市場,提供規劃設計、采購、施工等一站式服務,得到客戶“高回頭率 高滿意度”的肯定,曾獲得CCTV2頒發的“優秀設計團隊”獎
2019-07-15
合景裝飾合作單位鴻利達始終追求以精湛的技術為客戶提供精密塑膠部件及產品。憑借世界級高效能注塑方案、獨特的專業液體硅橡膠模具制作及注塑技術、與一步法注拉吹(ISBM)技術支持伙伴的密切合作,鴻利達建立了多樣化的客戶群,為醫療,個人護理,汽車及硬包裝等行業提供全方位塑膠產品解決方案。
為確保為客戶提供穩定優質的服務,鴻利達不斷提升其業務管理水平及產品質量管理系統,已實施和取得的SAP 企業資源規劃(ERP)、ISO 系列資質認證,都是為實現對客戶承諾的最佳體現。還有正在啟動的產品生命周期管理(PLM)系統,及計劃于2015 年度內取得的ISO13485 資質認證、FDA 注冊及QS 認證。















OTHER