合景裝飾20年大品牌,精耕辦公裝修市場,提供規劃設計、采購、施工等一站式服務,得到客戶“高回頭率 高滿意度”的肯定,曾獲得CCTV2頒發的“優秀設計團隊”獎
2019-07-15
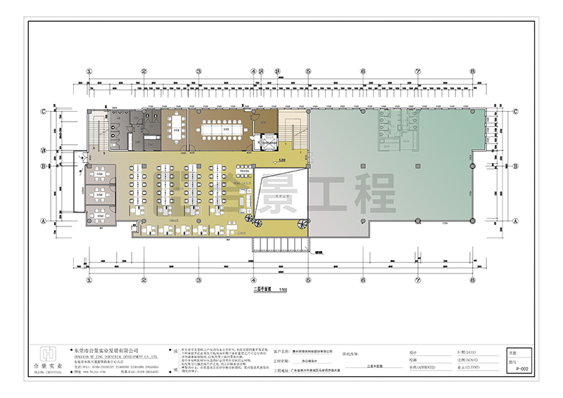
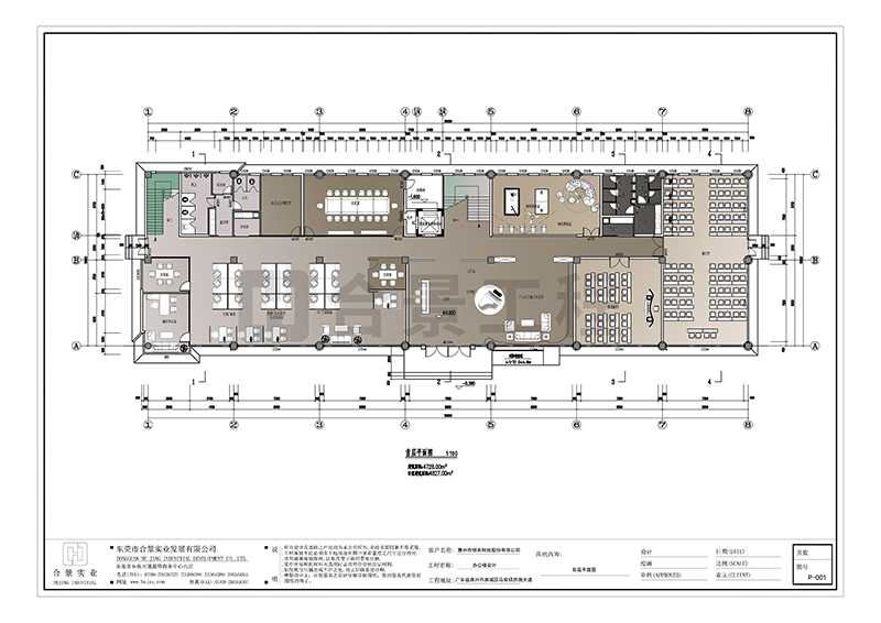
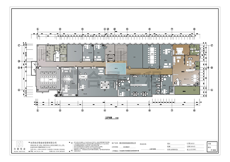
合景裝飾合作單位惠州市銀農科技股份有限公司主要從事于高效、安全、對環境友好的新劑型農藥制劑的研發、生產和銷售,并為專業種植戶提供優質的植保技術服務。

OTHER